Client: Old Age Home
Completed: unbuilt Project
Site area: 1500 Sqm
Built area: 1800 Sqm
Old Age Home, Delhi
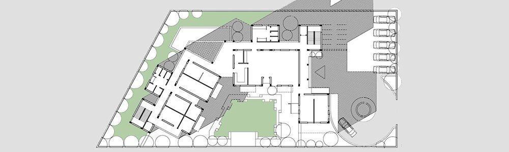
The main Design criterion was the comfort & special needs of the senior citizens. Places for congregation were incorporated in the plan to increase a sense community, for regular interactions & group activity. Main corridors sheltered the rooms from the northerly winds and accorded privacy to the inhabitants.
SSA used the vocabulary of traditional North Indian architecture, blended with modern planning. ‘Jharokhas’, pergolas & balconies overlooking the stepped ‘kund’ or courtyard were an important feature. Earth colours highlighting receding planes were used to create a homely, comfortable and friendly atmosphere.


